Përmbledhje
- Sipërfaqe bruto: 133.95
- Dhoma gjumi: 2
- Tualete: 2
- Floor: 8
Përshkrimi
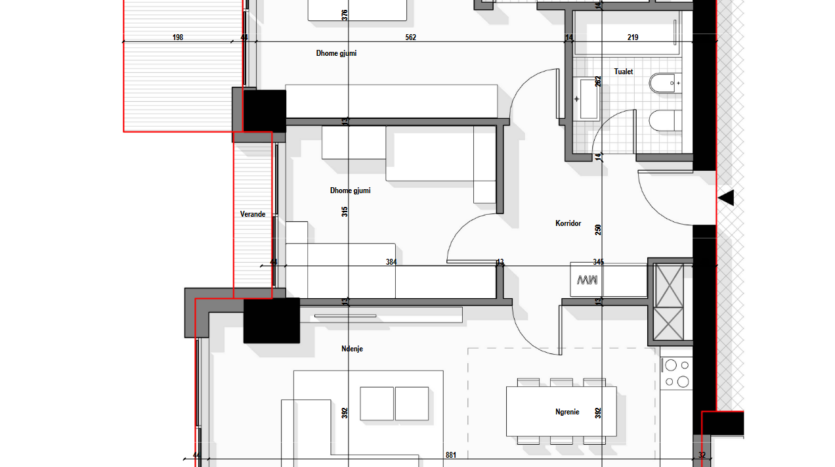
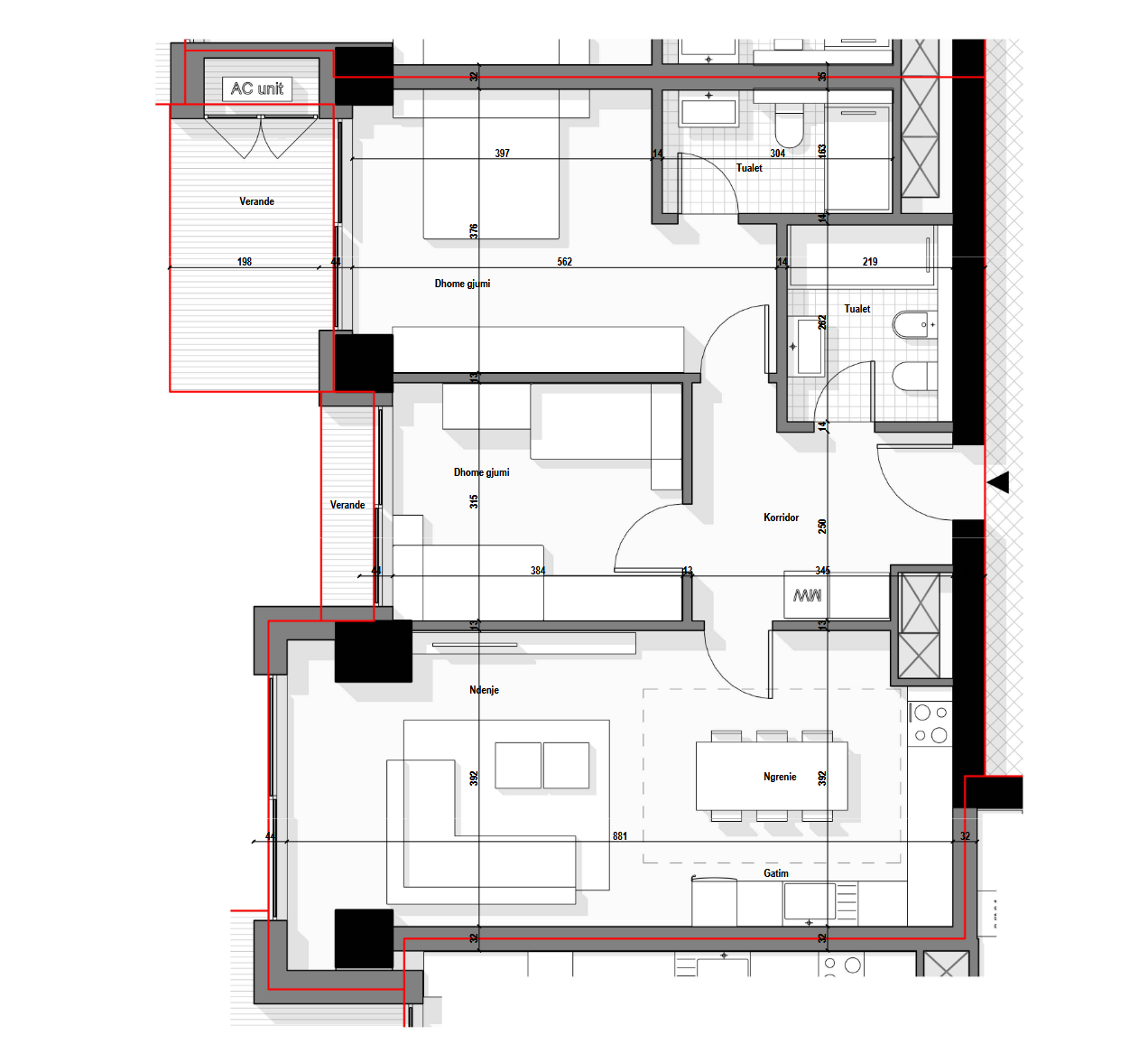
Tirana Boulevard (Kodi: B8-07)
Apartament 2+1 në katin 8, me organizim të rregullt dhe hapësira të bollshme, ideal për familje ose investim.
Apartamenti ofron një zonë të madhe ndenje + ngrënie + gatim, e cila krijon ambient komod dhe funksional për përditshmërinë.
Ka 2 dhoma gjumi, 2 tualete dhe verandë perfekte për aktivitete të ndryshme gjatë ditës.
Sipërfaqe:
- Neto: 102.2 m²
- Verandë: 10.3 m²
- Totale (Bruto+verandë): 133.95 m²
- Sipërfaqe e përbashkët: 26.6 m²
Planimetri e rregullt, korridor shpërndarës dhe ndarje shumë e mirë mes zonës së ditës dhe dhomave të gjumit.
.
Çmimi: € 294,690
Sipërfaqja e pronës: 133.95
Dhoma gjumi: 2
Tualete: 2
Kodi i Pronës: B8-07
Lloji i Fasadës: Fasadë e ventiluar
Kati: 8
Katet e ndërtesës: 25
Projekt: Tirana Boulevard
AC: Sistem kondicionimi qëndror
Numri i Ashensorëve: 14
Orientimi: Jugperendim
Pamja e pronës: Pamje e lire
Faza e projektit: Under construction
Prona të ngjashme
Apartament ne shitje në Tirana Boulevard...
€ 366,600
Pershkrimi i planimetrisë: Apartament në shitje me organizim 2+1 në Tirana Boulevard Ky ...
Apartament ne shitje në Tirana Boulevard...
€ 208,000
Pershkrimi i planimetrisë: Apartament 1+1 me verandë dhe pamje panoramike në Tirana Boul ...
Apartament ne shitje në katin 21. në Tir...
€ 427,040
Pershkrimi i planimetrisë: Apartament 2+1 ofrohet për shitje në katin e 21-të të objekti ...
Apartament 2+1 në shitje, Tirana Bouleva...
€ 252,850
Tirana Boulevard (A7-04.2) Prosperity ofron për shitje apartament me 2 dhoma gjumi, i pozi ...
Tirana Boulevard, njësi komerciale – Z4-...
€ 735,900
Tirana Boulevard (Kodi: Z4-02) Në zemër të një prej zhvillimeve më moderne në kryeqytet, o ...
Tirana Boulevard, Ap. 2+1 – B7-09.2
€ 271,705
Tirana Boulevard (Kodi: B7-09.2) Apartament 2+1 për shitje në katin 7, kulla B, me sipërfa ...













